82㎡当代意式: 木韵关切, 黑调千里静, 动静两合适

技俩信息
PROJECT INFORMATION
地址/ 宝辉尚城
城市/ 中国 宁波
户型/ 三室两厅
面积/ 82㎡
作风/ 当代意式
筹谋施工/ 浙江南鸿守密
作品弁言
ABOUT HOME
本案哄骗客餐一体的横厅样式,将大面当然光充分引入,视线通透怒放,有用缓解小户型的狭小。材质上主用关切木饰面搭配深色石材,冷暖均衡,贯穿性的立面将各个区域串联,形塑合股感。
空间举座抛却芜乱守密与冗余颜色,勾画出一方宁静而具有质感的生涯场域,也为居住者留出了更大的解放圭臬。



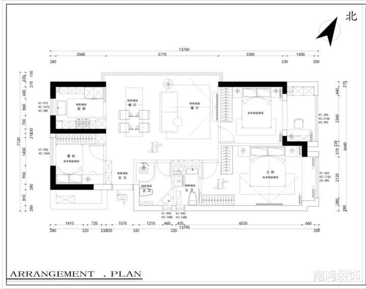
户型决策
LAYOUT DESIGN

实景呈现
CASE APPRECIATION
No.1
客厅

公区域是一体化的横厅样式,豁达的视线与充沛的当然光和会,将家庭所有生涯场景完整收留。

沙发体量不算大,可随时革新位置,比如从背靠餐椅弯曲到背靠窗景,随心解放的挪移之间,让空间有了更多崭新的样子与情谊。

电视配景墙面右侧将次卧房门作念了隐形筹谋,与举座木饰面形影相随,组合纵向的格栅线条与深色石材,在谐和合股中拉开精真金不怕火有劲的档次,并赋予静态墙面以流动的节律感。



悬浮体块造型的电视面与落地电视柜一同定制为哑光黑,气质温敛难懂。过谈置入水吧台,宽广的泡茶煮咖啡,亦或会客时需要递上的茶水,都将愈加安宁便捷。色调与材质上的呼应,从不同的区域落点,在空间内造成连贯的视觉流动。


曙光里氤氲的咖啡香气,随同孩子游戏的欢声笑语,周末知交荟萃时的海阔天外...家的诸多好意思好形状,齐在此亮堂雅净之境当然孕育。
No.2
餐厅

餐厅与客厅相识的样式,奥妙放大了空间遵守,两者互为拓展,餍足丰富各样化的场景需求。


T型的木质餐桌接续石材岛台,餐椅线条相通精真金不怕火通达,进一步强化空间举座的利落感受。石理与木纹一以贯之的均衡,在怒放样式中形出显豁的功能区分,又通过材质的碰撞传递出随心但高档的好意思学主义。
No.3
厨房

白色与灰色搭配的中厨空间,干净又千里稳。灶台区与水槽台造成所有高着落差,致密的圭臬考量,赐与使用者最大的下厨快意。
No.4
卧室

主卧改造传统床位布局,在床头与进口之间筹谋了柜体封锁,既能顾及风水,造成一定视觉遮挡,又借助悬挑、穿插的当代化筹谋手法,为空间增添了高档感与艺术感。


主卧有着极简框架下独属的克制、静谧氛围,床侧梳妆台当然地从柜体延迟而出,在颜色与结构上造成完整过渡,线条舒展而通达。


飘窗以优柔坐榻体式,成为日光漫入的容器,舒徐柔软的休憩情谊温存彭胀。留白的配景墙大开沉稳呼吸,木饰面半墙勾画空间档次,一张玄色皮艺床具介入,在颜色与肌理上造成较着碰撞,亦实现极妙的视觉均衡。



儿卧色调亮堂清浅,长虹玻璃材质的圆弧造型柜门上,有着金色的蝴蝶拉手,仿佛随时会振翅遨游,为孩子宽广注入童话般的奇妙思象力。
No.5
卫生间

针对卫浴间的墙面结构,筹谋师定制了三角斜切台盆柜,贴合空间走向,有用擢升转角哄骗率。同期增添吊柜,拓展储物功能,底面的悬空留出更多视觉空间,也便于宽广的清洁收拾。

